GRE

BASE 1 Corner Town House à Brooklyn

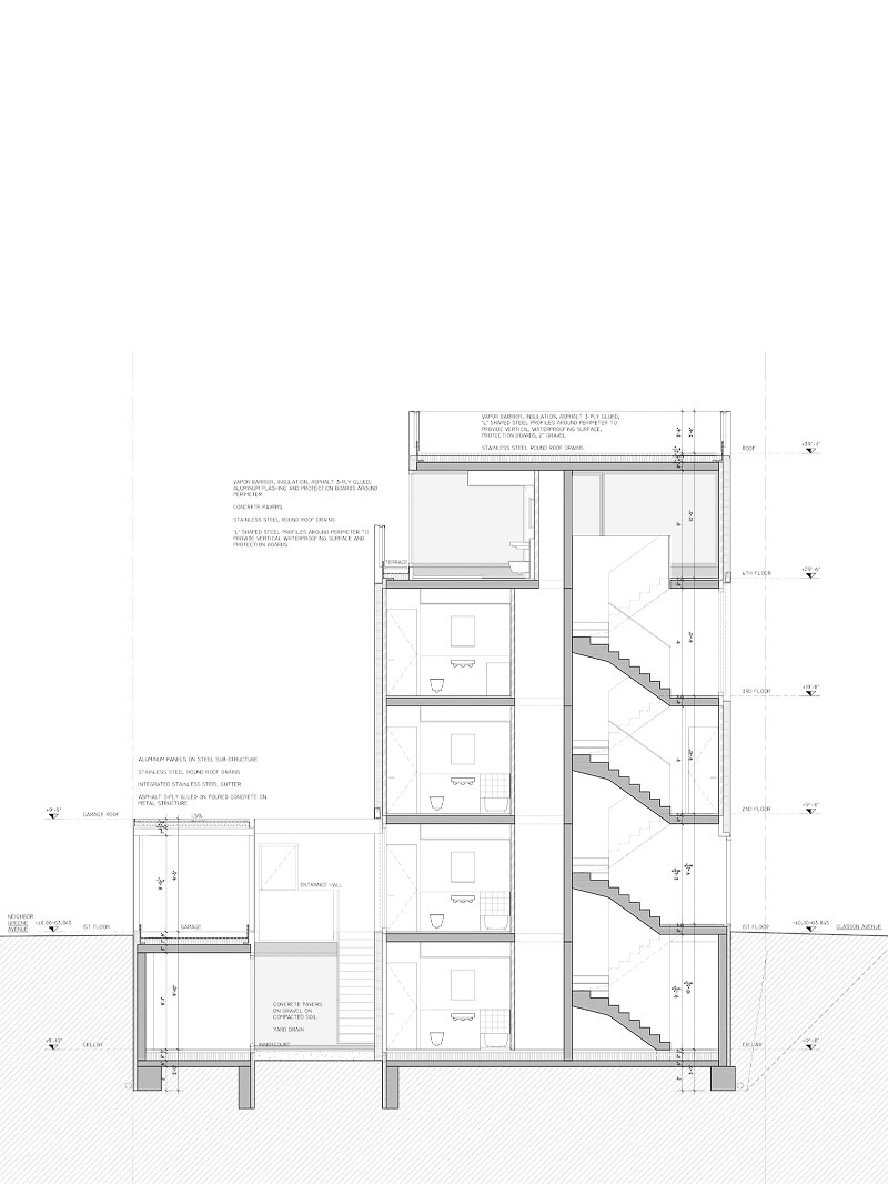
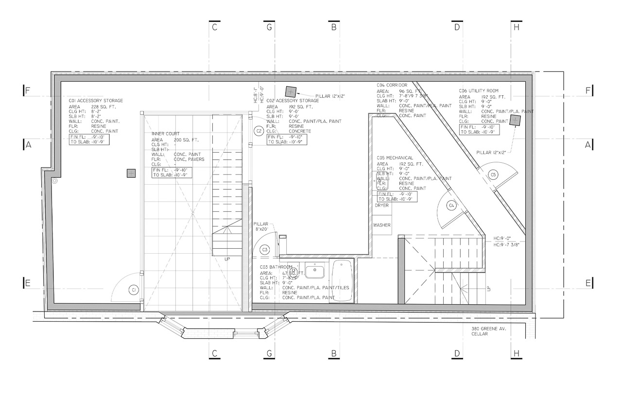
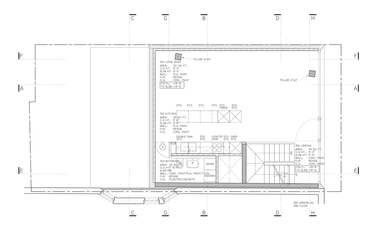
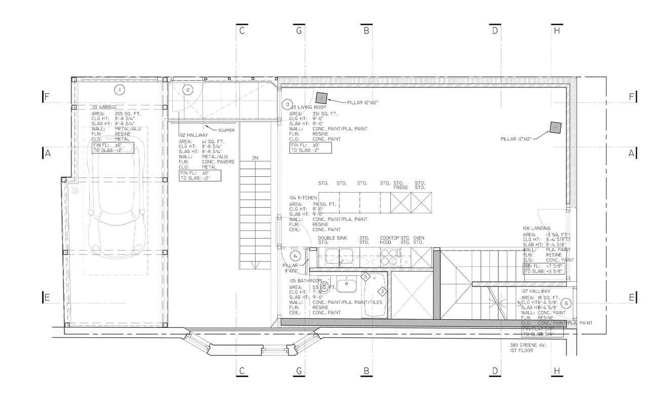
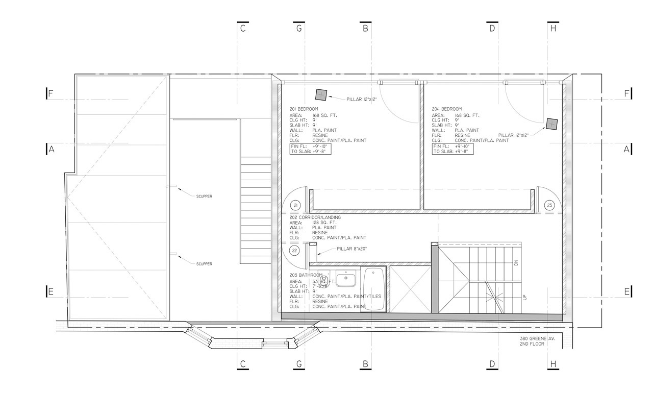
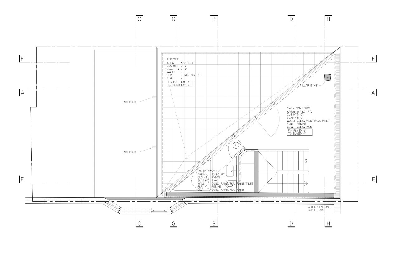
”Base 1 - A corner Town House” est situé à l’angle de Classon et Greene à Clinton Hill, Brooklyn. Le petit immeuble regroupe un triplex de 5 pièces avec terrasse aux niveaux supérieurs, et un duplex de 4 pièces avec patio au rez-de-chaussée et niveau inférieur. Un petit garage donne sur la rue. La construction est en béton armé et les façades sont planes, en crépis gypsé blanc. A chaque étage et en quinconce, de grandes baies vitrées éclairent et ventilent les espaces d’habitation. La volumétrie culmine en triangle sur l’angle.

BASE 1 Corner Town House à Brooklyn

Maître de l’Ouvrage: 272 Greene Ave LLC
Coût: NC
Nature du projet: Nouveau bâtiment
Procédure: Mandat direct
Projet: 2016 - 2019
Réalisation: 2023-2025
Mandat: Phases SIA 65%, Arch Local 35%